RÉNOVATION D'UNE LONGÈRE EN MAISON D’HABITATION, CHAMBRES D’HÔTES ET UN GÎTE
-
Lieu :
32 route de la Roche Torin, 50220 Courtils
Maître d’ouvrage(s) :
Privé
Architecte(s) :
ANCRE ARCHITECTURE
Surface(s) :
285 m2 SHAB
Coût(s) H.T :
450 000 € H.T
Statut :
Chantier en cours
Année :
2026
Catégories :
Maison individuelle
Chambres d’hôtes
Gîtes
Camping
Mission(s) :
RLV, ESQ, APS, APD, PC
Délais travaux :
12 mois
Démarche(s) :
BBC rénovation
RT 2020
Loi littoral
Zone naturelle
Photographies :
Ancre Architecture
-

-
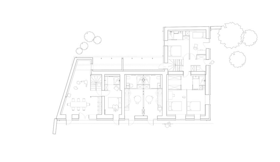
Le projet consiste à réhabiliter une maison de type longère en une maison individuelle et 1 gîte, tout en préservant et valorisant les
éléments architecturaux et historiques du site et de la région. Situé au bord de la baie du Mont-Saint-Michel, flux stratégique touristique de la route de la Roche Torin, cet ensemble contribuera à la revitalisation du patrimoine dormant et proposera des atouts
touristiques pour la commune de Courtils.
L’opération inclut :
- La rénovation complète de la maison individuelle, avec mise en conformité énergétique (performante),
- La réhabilitation d’une dernière partie de l’ancienne maison individuelle en un gîte.
Le projet entend réhabiliter et rénover l’existant par la mise aux normes énergétiques (Isolation par l’extérieur et Isolation par l’intérieur en matériaux biosourcés) tout en réemployant le langage architectural propre aux bâtis de la région.
Les implantations, les emprises du projet, reprennent au maximum celles du bâtiment existant. La rénovation de la toiture (sarking)
permettra de couvrir l’isolation par l’extérieur apportée aux façades les plus longues. La toiture recevra de nouvelles ouvertures pour
permettre son habitabilité entre fenêtre de toit (type velux) et lucarne à 2 pans type jacobine pour prendre de la lumière au Sud et à
l’Ouest. Sur la route de la Roche Torin la façade en limite de propriété sera conservée en pierre tout comme la façade Nord au bord
du chemin rural.
Une prolongation de la toiture existante en ex-croissance au Nord permettra de créer une terrasse couverte pour le gîte et
d’accueillir un espace buanderie non isolé pour la maison.
Le projet s’inscrit dans une démarche d’intégration du bâti dans la baie du Mont-Saint-Michel soumis à la loi littorale. Le présent
projet veut à la fois rénover de façon vertueuse le bâti existant tout en maintenant les proportions et matériaux caractéristiques de
l’architecture traditionnelle.
-









